带拉手的地插GES9M-2

项目编号 7405371 | EAN码 4012196028740

7405371 / GES9M-2 10U
5 mm
产品描述
产品描述
带有拉手的地插,最多可容纳3个UT4通用支架,安装12个单独的Modul 45设备,用于线槽系统和地板系统。

由镀锌钢板制成的卡扣式梯子


带拉手的地插,三室,用于安装MT9安装支架。 可安装 3 个 APMT5 型盖板

Up to 9 installation devices with 50 mm central plate can be inserted.

  • 电气、电子、信息技术注册协会,德国
  • 欧共体,根据欧共体指令的欧共体(EC)符合性声明
  • CO₂ footprint (PCF)
  • Packaging without plastic
  • Packaging made entirely from recycled cardboard
技术资料

二氧化碳足迹(Product Carbon Footprint)

CO2 足迹 (GWP) 从摇篮到大门 20,0394 kg CO2e / 1 件
Floor covering thickness max. 10 mm
使用时的防护等级(IP) IP20
可安装设备数量 12
地板保护架
地板厚度 5 mm
地板护理 干燥
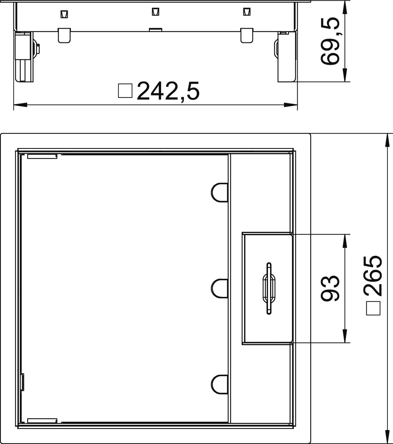
外形宽度 265 mm
外形长度 265 mm
大面积垂直荷载 最大 5,000 N
安装宽度 244 mm
安装深度 78 mm
安装盒数量 3
安装系统类型 MT4 / GB3
安装长度 244 mm
宽度 265 mm
密封安装选项
小面积垂直荷载 最大 3,000 N
尺寸 266x266x69
带地板罩凹槽
开启机制 手柄杆
支持安装盒的设备
最大夹紧范围 D 61 mm
最小地板高度 78 mm
最小夹紧范围 D 3 mm
未使用时的防护等级(IP) IP40
材料 优质不锈钢1.4301
框架设计 地毯保护架
电缆插座 可旋转式电源插座
规格 正方形
设备安装单元的标称尺寸 9
适用于与地面齐平的封闭式地板下线槽
适用于中空地板安装
适用于地下线槽
适用于找平层覆盖的地板下线槽
适用于架空地板安装
适用于湿式清洁
重型
长度 265 mm
防护等级 IK代码 IK10
高度 67 mm
所有型号

所有型号

型号 地板厚度 产品编码 数量
GES9M-2 10U 5 mm 7405371
1 个
附件

系统附件

产品 型号 产品编码 数量
锁梯延伸 锁梯延伸 GES RV 7407536
2 个
下载

下载

下载

GES9M-2 10U / 7405371
下载